Солуданов Я.Ю. Портфолио.
2016
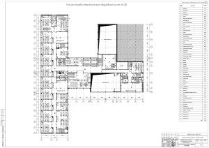
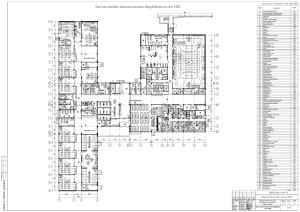
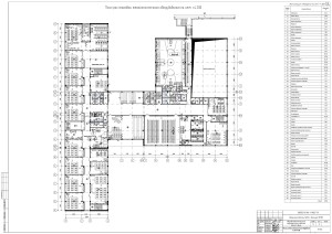
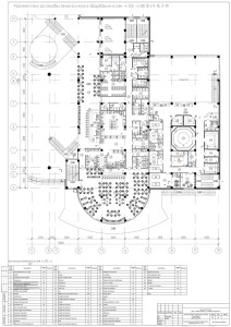
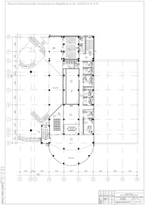
Школа в г. Заречном Пензенской области
2014 — 2016
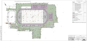
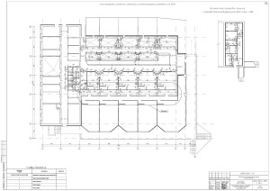
Реконструкция спортивных стадионов Пензенской области
2009 — 2016
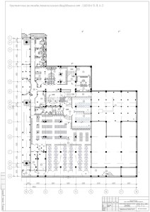
Реконструкция зоопарка в г. Пензе
2008 — 2009
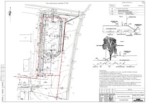
Генеральный план г. Заречного Пензенской области
2007
проект планировки и застройки жилого района г. Дмитров Московской области
2006
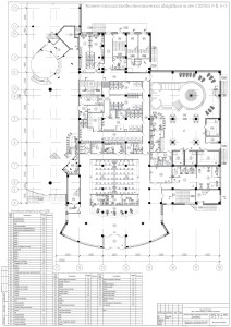
Семейный спортивно-оздоровительный комплекс Сигма-HOLIDEYS. Здание аквапарка в г.Великом Новгороде
2006
Архитектурно — стилевые решения по комплексу зданий ЗАО «Московский шёлк»
2004
Колористическое решение фасадов кадетского корпуса в г. Москве.











































